Trilocale con giardino in residence con piscina - Lazise (ref.2161)

Zona tranquilla a breve distanza dal centro.

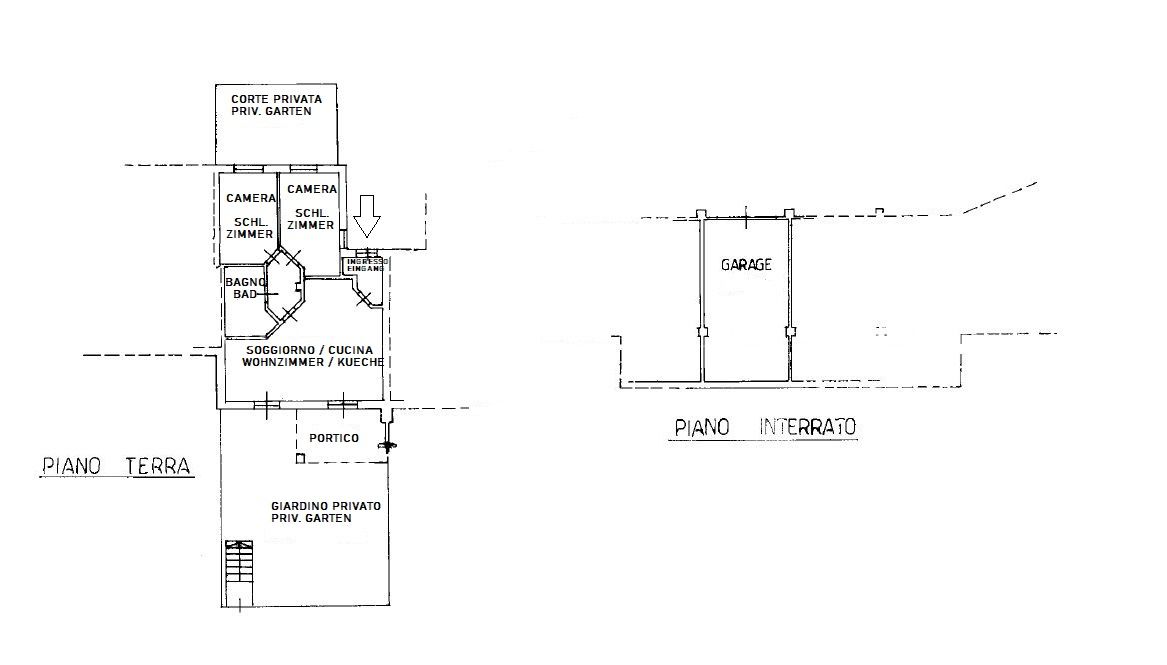
Lazise - In piccolo e grazioso contesto residenziale con piscina vista lago, in zona tranquilla a poca distanza dal centro storico, vendesi luminoso appartamento trilocale con doppio giardino. Disposizione: Piano terra: Ingresso, ampio soggiorno/pranzo con angolo cottura e accesso alla veranda e giardino privato, due camere doppie, bagno con doccia e angolo lavanderia. Sul retro è presente un'ulteriore spazio esterno esclusivo di circa 10 m2. Ampio box e cantina al piano interrato. Ottima soluzione per la propria casa vacanza al lago.
Classe Energetica: "D" (151,66 kWh/m2 anno)

Maggiori informazioni?

Telefonaci +39 045 62.12.610
oppure compila la richiesta:



.